-
-
-
-
-
-
-
-
-
Info
-
Location:
Program:
Area:
Client:
Photo Credits:
-
Council Bluffs, IA
Senior Living
96,000 SF
Prime Development, LLC
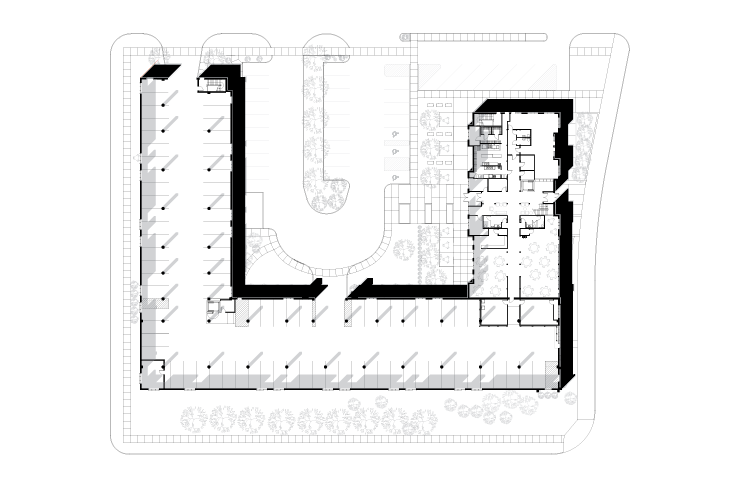
ASK Studio- Prime Square Apartments is a senior living project consisting of 80, one and two bedroom units. The project reclaims a brownfield site which has been a catalyst for downtown redevelopment in Council Bluffs. It is composed additionally with a commercial component that houses the Visiting Nurse’s Association.
The building’s concept was centered on both the need to maintain a downtown density and the need to conceal an 80 stall parking garage. The language of the existing downtown architecture is respected through the execution of varying planes and materials on the façade, in addition to the undulating heights of the roof and parapets. Considered uncommon in affordable housing, the parking garage rests on the lower level of the building and connects to a retail component at the street level.
Prime Square Apartments
