-
-
-
-
-
-
-
-
-
Info
-
Location:
Program:
Area:
Client:
Photo Credits:
-
Anamosa, IA
Institutional
22,000 SF Addition
State of Iowa
ASK Studio
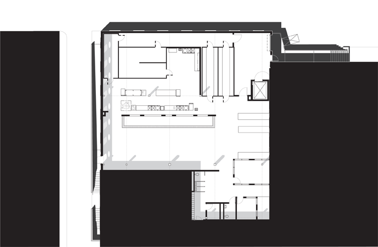
- When prison inmates are a large part of the operations of a facility, it is crucial to provide an open space that is high in visibility with minimal walls to disrupt sight and sound. The existing kitchen at the Anamosa Penitentiary was segregated into several compartments which did not allow for the high visibility needed for the security of the facility. Perhaps the most critical question is, “how do we design a space that can remain fully functional during the renovation process?” This project in turn provides an out of the box solution to allow for uninterrupted food preparation.
To solve these issues, we first proposed to build a new addition in an under-utilized area adjacent to the existing facility. The location of this space was ideal for connecting the existing space to the new kitchen. At the same time, it enabled the existing kitchen to remain in operation. The product of these challenges became a larger, more open kitchen space that allowed for the uninterrupted food preparation that the facility needed.
Anamosa State Penitentiary
